Porzione di bifamiliare in vendita

Buttapietra, Via Paganini
€ 475.000
5 locali 5 locali
179 Mq 179 Mq
2 bagni 2 bagni

Porzione di bifamiliare in vendita

Buttapietra, Via Paganini

Descrizione annuncio

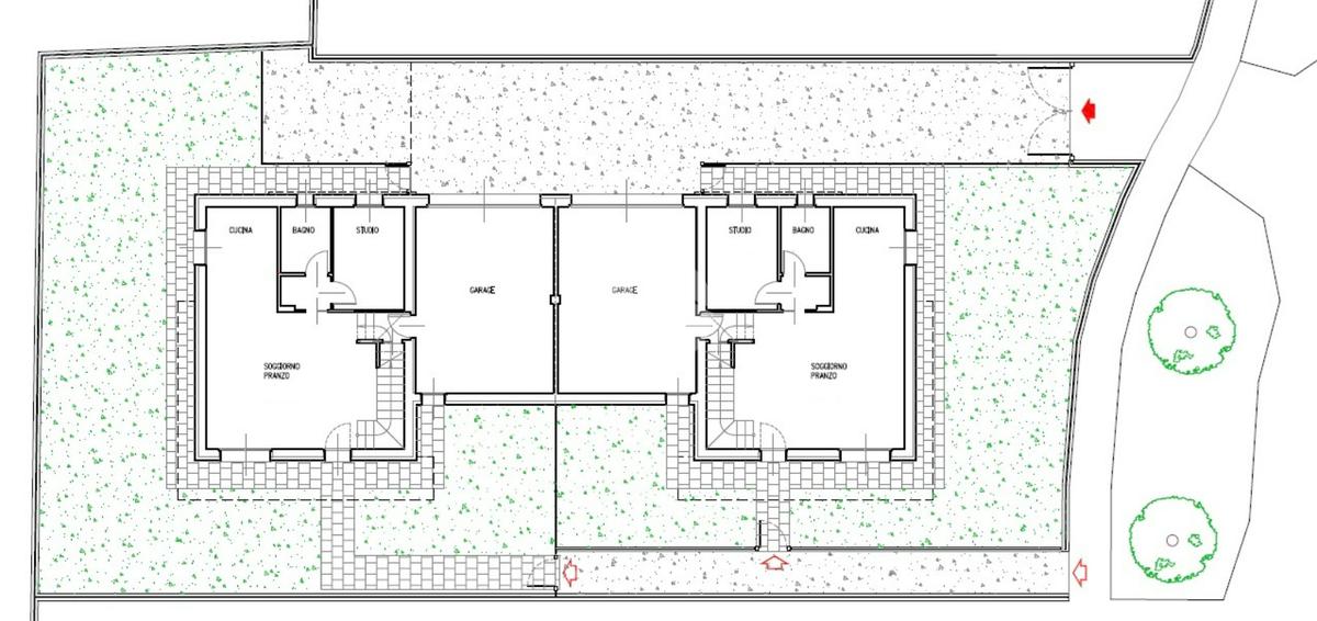
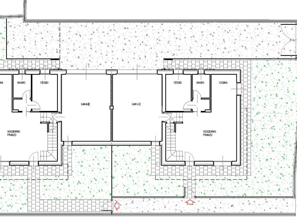
BUTTAPIETRA - In costruzione NUOVA Porzione di Bifamiliare esposta a NORD/EST/SUD su due piani fuori terra con giardino, composta da soggiorno con cucina a vista, studio, bagno finestrato, ripostiglio/sottoscala e garage doppio in larghezza al piano terra. Al piano superiore camera matrimoniale con terrazza, camera doppia, camera singola (entrambe con sfogo sul balcone) e bagno finestrato. Materiali e finiture di primissimo livello con possibilità di personalizzazione. Impianto fotovoltaico da 4,50 KW. Tecnologie costruttive di ultimissima generazione per un elevato comfort abitativo ed un importante risparmio energetico. Consegna prevista per la fine del 2026. Classe A4 (valore di progetto). Info, progetti e capitolato in agenzia.

Mostra tutto

Nelle vicinanze

Trasporto pubblico Trasporto pubblico
stazione di Buttapietra
stazione di Buttapietra
1,3 Km
Buttapietra
Buttapietra
450 m
Bovolino
Bovolino
740 m
Scuole Scuole
Scuole
370 m
Farmacia Farmacia
Farmacia Manfrini
470 m
Farmacia Santissimo Redentore
2,5 Km
Ristoranti Ristoranti
Trattoria Capucci
2,7 Km
Mostra tutto

Caratteristiche

Rif.:
61150141
Piano:
Su più livelli di 2
Totale piani:
2
Box:
1
Terrazzi:
1
Camere da letto:
3
Mostra tutto
Prezzo Prezzo
€ 475.000
Rata mutuo Rata mutuo
€ 2.257 / mese
Proponi il tuo prezzoProponi il tuo prezzo

Classe Energetica

A4
A4
A4
A4
A4
A4
A4
A4
A4
EP globale non rinnovabile:
12.34 kW h/m² anno
EP globale rinnovabile:
56.78 kW h/m² anno
EP invernale del fabbricato:
EP estiva del fabbricato:
Anno di costruzione:
2025
Riscaldamento:
Autonomo
Tipo impianto:
A pavimento
Tipo alimentazione:
Altro

Ti interessa visionare l'immobile?

Fissa un appuntamento  Fissa un appuntamento

Richiedi informazioni

Clicca su Leggi per aprire l'informativa
* Questi campi sono obbligatori

Calcola il tuo mutuo

Semplice e senza impegno
Anticipo

( % )
Mutuo

( % )

pochi semplici passi

inserisci i tuoi dati
Questionario completato
Grazie per aver richiesto un appuntamento senza impegno con un nostro Consulente del Credito e Assicurativo.

Hai inserito correttamente tutti i dati necessari e a breve riceverai una e-mail con un link da convalidare per inviare i tuoi dati.
Affiliato
Studio Buttapietra Srl
P.zza Roma, 40 37060 Buttapietra (VR)

Il nostro staff


  • Ferdinando Marconcini
    Affiliato

  • Davide Falsiroli
    Affiliato

  • Alessandro Spoladori
    Collaboratore

  • Roberto Mazzitelli
    Collaboratore
P.zza Roma, 40 37060 Buttapietra (VR)
Zona: Buttapietra - Cà di David
Mostra su mappa
Orari: dal Lunedì al Venerdì 09.00 - 12.30 e 15.00 - 19.30. Al Sabato 09.00 - 12.30.
Affiliato
Studio Buttapietra Srl
P.zza Roma, 40 37060 Buttapietra (VR)

2026 Tecnocasa Franchising S.p.A. - P. IVA 08365160152 - Via Monte Bianco 60/A 20089 Rozzano (MI). Ogni agenzia ha un proprio titolare ed è autonoma. Privacy policy | Policy utilizzo | Cookie policy